Dintel en aberturas...
Dintel en aberturas...
Buen dia!!!
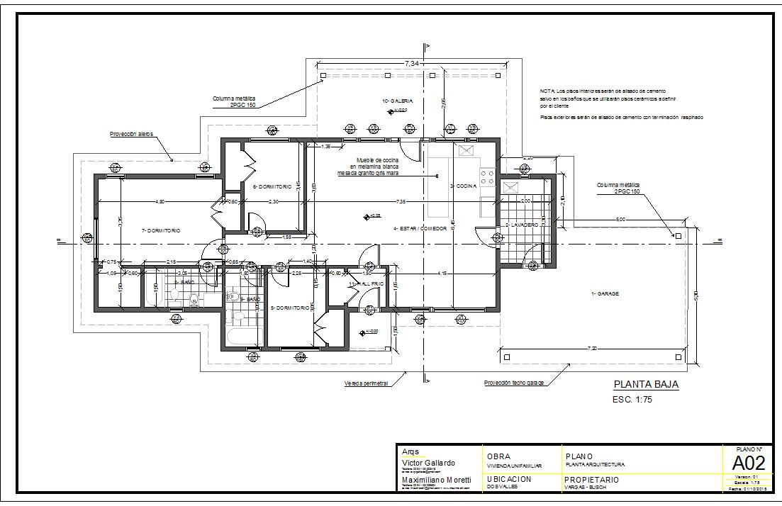
Estoy empezando a levantar el esqueleto de mi casa, 116mts2, una sola planta y techo a un agua. El arquitecto me entrego los planos para empezar con el armado de paneles, y voy a utilizar soleras de PGU 100 y montantes PGC 100, y para los apoyos donde van a ir apoyados los cabios de 3x8, voy a juntar 2 PGU de 140 atornillados con 2 PGU de 100 para que se monten bien en la soler del PGU de 100.
Consultas:
1) esta todo apoyado sobre una platea a la que ya previamente le coloque varillas enrosacadas de 10mm separadas cada 2mts para amurar en todo el perimetro de la casa la solera PGU 100. Le faltaria mas anclajes o son suficientes?
2) en las averturas no veo que haya dibujado los dinteles para reforzarlas y que el peso se distribuya bien por todo la abertura y no la aplaste, es necesario el dintel o no?, de ser necesario, si los armo con PGU de 140, estara bien?
les adjunto planos para que vean....
muchas gracias por su ayuda!!!!!!!
saludos,
juan.
Estoy empezando a levantar el esqueleto de mi casa, 116mts2, una sola planta y techo a un agua. El arquitecto me entrego los planos para empezar con el armado de paneles, y voy a utilizar soleras de PGU 100 y montantes PGC 100, y para los apoyos donde van a ir apoyados los cabios de 3x8, voy a juntar 2 PGU de 140 atornillados con 2 PGU de 100 para que se monten bien en la soler del PGU de 100.
Consultas:
1) esta todo apoyado sobre una platea a la que ya previamente le coloque varillas enrosacadas de 10mm separadas cada 2mts para amurar en todo el perimetro de la casa la solera PGU 100. Le faltaria mas anclajes o son suficientes?
2) en las averturas no veo que haya dibujado los dinteles para reforzarlas y que el peso se distribuya bien por todo la abertura y no la aplaste, es necesario el dintel o no?, de ser necesario, si los armo con PGU de 140, estara bien?
les adjunto planos para que vean....
muchas gracias por su ayuda!!!!!!!
saludos,
juan.
- DanielDEsposito
- Administrador
- Mensajes: 1212
- Registrado: 30 de Junio de 2014 - 20:49:17
- País: Argentina
Re: Dintel en la averturas...
Hola Juano, que lindo proyecto!!!
Con respecto a tu pregunta en la presentacion de la duda de para que lado van los perfiles fijate que el panelizado que te hizo tu arquitecto esta muy bueno y abajito de la vista del panel tenes una planta del panel donde lo especifica
Cualquier problema pega un chiflido y lo vemos!!
Con respecto a tu pregunta en la presentacion de la duda de para que lado van los perfiles fijate que el panelizado que te hizo tu arquitecto esta muy bueno y abajito de la vista del panel tenes una planta del panel donde lo especifica
Cualquier problema pega un chiflido y lo vemos!!
Siempre es conveniente consultar a un Profesional Matriculado (Ingeniero Civil, Arquitecto, Maestro Mayor de Obras) para no poner en riesgo la vida de personas.
Re: Dintel en la averturas...
gracias daniel por tu pronta respuesta, pero me parece que te confundiste con la pregunta, yo pregunte otra cosa, mas con respecto a los dinteles que no aparecen en el plano y a los anclajes,
gracias!!!!!
gracias!!!!!
- DanielDEsposito
- Administrador
- Mensajes: 1212
- Registrado: 30 de Junio de 2014 - 20:49:17
- País: Argentina
Re: Dintel en la averturas...
juano80 escribió:Buen dia!!!
Estoy empezando a levantar el esqueleto de mi casa, 116mts2, una sola planta y techo a un agua. El arquitecto me entrego los planos para empezar con el armado de paneles, y voy a utilizar soleras de PGU 100 y montantes PGC 100, y para los apoyos donde van a ir apoyados los cabios de 3x8, voy a juntar 2 PGU de 140 atornillados con 2 PGU de 100 para que se monten bien en la soler del PGU de 100.
Consultas:
1) esta todo apoyado sobre una platea a la que ya previamente le coloque varillas enrosacadas de 10mm separadas cada 2mts para amurar en todo el perimetro de la casa la solera PGU 100. Le faltaria mas anclajes o son suficientes?
2) en las averturas no veo que haya dibujado los dinteles para reforzarlas y que el peso se distribuya bien por todo la abertura y no la aplaste, es necesario el dintel o no?, de ser necesario, si los armo con PGU de 140, estara bien?
les adjunto planos para que vean....
muchas gracias por su ayuda!!!!!!!
saludos,
juan.
Hola Juan, retiro lo dicho!!! si parece que el Arquitecto se olvido los dinteles.. En la unica ventana que podrian no ir dinteles es la ventana del P01 porque no tiene cargas puntuales (tiene el peso repartido a diferencia del lugar donde apoya un cabio que es un peso puntual dicho en criollo)
Por las dudas hacele a todas.. No sabia que venian perfiles de 140 son pgc? osea Perfil Galvanizado C?
Si las aberturas tienen menos de 1,50mts de ancho estaria perfecto eso.. si tuviera mas de eso debertias ponerle de 200mm en lugar de 140
Te mando un saludo!!
Siempre es conveniente consultar a un Profesional Matriculado (Ingeniero Civil, Arquitecto, Maestro Mayor de Obras) para no poner en riesgo la vida de personas.
- DanielDEsposito
- Administrador
- Mensajes: 1212
- Registrado: 30 de Junio de 2014 - 20:49:17
- País: Argentina
Re: Dintel en la averturas...
DanielDEsposito escribió:juano80 escribió:Buen dia!!!
Estoy empezando a levantar el esqueleto de mi casa, 116mts2, una sola planta y techo a un agua. El arquitecto me entrego los planos para empezar con el armado de paneles, y voy a utilizar soleras de PGU 100 y montantes PGC 100, y para los apoyos donde van a ir apoyados los cabios de 3x8, voy a juntar 2 PGU de 140 atornillados con 2 PGU de 100 para que se monten bien en la soler del PGU de 100.
Consultas:
1) esta todo apoyado sobre una platea a la que ya previamente le coloque varillas enrosacadas de 10mm separadas cada 2mts para amurar en todo el perimetro de la casa la solera PGU 100. Le faltaria mas anclajes o son suficientes?
2) en las averturas no veo que haya dibujado los dinteles para reforzarlas y que el peso se distribuya bien por todo la abertura y no la aplaste, es necesario el dintel o no?, de ser necesario, si los armo con PGU de 140, estara bien?
les adjunto planos para que vean....
muchas gracias por su ayuda!!!!!!!
saludos,
juan.
Hola Juan, retiro lo dicho!!! si parece que el Arquitecto se olvido los dinteles.. En la unica ventana que podrian no ir dinteles es la ventana del P01 porque no tiene cargas puntuales (tiene el peso repartido a diferencia del lugar donde apoya un cabio que es un peso puntual dicho en criollo)
Por las dudas hacele a todas.. No sabia que venian perfiles de 140 son pgc? osea Perfil Galvanizado C?
Si las aberturas tienen menos de 1,50mts de ancho estaria perfecto eso.. si tuviera mas de eso debertias ponerle de 200mm en lugar de 140
Te mando un saludo!!
PERDON PERDON PERDON
Ahi entendi lo que hizo este muchacho el arquitecto tuyo.. pasa que como no es tan tan habitual me confundi en lo que vi.. paso a comentarte:
Tu arquitecto coloco los cabios bastante separados y apoyados en columnas vale decir que las aberturas de tu casa no estan recibiendo carga del techo.. por tal motivo no es necesario colocar dinteles!!
En realidad lo que hizo el arquitecto es una version mas parecida a una construccion con ladrillos que al Steel Framing Standard, pero esta correcto igualmente!!! y en mi opinion no tendrias que tener problemas.. Seguramente vas a necesitar "clavaderas" bastante cojudas porque la distancias entre apoyos son amplias.. si me lo preguntas yo le pondria perfileria de 100 doble espalda con espalda ][ asi cada 80 cm perpendicular obviamente a los cabios que por lo que veo son dobles pero enfrentados [] asi Saludos!!
Siempre es conveniente consultar a un Profesional Matriculado (Ingeniero Civil, Arquitecto, Maestro Mayor de Obras) para no poner en riesgo la vida de personas.
-
DonLeopardo
- Mensajes: 42
- Registrado: 04 de Junio de 2015 - 13:16:08
- País: Argentina
Re: Dintel en aberturas...
buenas, daniel que diferencia tiene este penalizado que se cerro a nivel de dintel con otro desarrollado a otro nivel ? (esto nunca lo vi) y otra pregunta es mas caro simplificar la estructura del techo como esta, en vez de realizar todo el costillar normal?, desde ya gracias.
Re: Dintel en aberturas...
Tal cual daniel!!!! Recién abro para comentarte lo mismo que es lo que estuveanalizndo viendo los planos. Los cambios los voy a hacer de pino oregon 3x8 y la idea es cruzarle 3x6 para clavaderas.
- DanielDEsposito
- Administrador
- Mensajes: 1212
- Registrado: 30 de Junio de 2014 - 20:49:17
- País: Argentina
Re: Dintel en aberturas...
Hola como andas?DonLeopardo escribió:buenas, daniel que diferencia tiene este penalizado que se cerro a nivel de dintel con otro desarrollado a otro nivel ? (esto nunca lo vi) y otra pregunta es mas caro simplificar la estructura del techo como esta, en vez de realizar todo el costillar normal?, desde ya gracias.
Mira!! otro detalle.. no lo habia visto, pense que era un fleje de strapping pero no lo aclara.. deberia!!
Lo ideal es preguntarle que quiso hacer..
podria ser un strapping o un blocking o solera con solera como dice Juan..
Evidentemente es un panelizado fuera de lo comun.. Bastante raro si se quiere, lo cual no significa que este mal, parece aceptable en mi opinion aunque yo no lo haria asi y no vas a ver muchas obras asi panelizadas.. si fuera blocking o strapping estaria bastante bien ya que evita la torsion de los perfiles.. si fuera solera con solera seria un poco negativo en el tema que se complica (o habria que tener mucho mas cuidado) para poner a plomo esa pared..
Vos sos MMO cierto? como es tu nombre de pila? veo muchos aportes tuyos muy buenos!
Saludos
Siempre es conveniente consultar a un Profesional Matriculado (Ingeniero Civil, Arquitecto, Maestro Mayor de Obras) para no poner en riesgo la vida de personas.
- DanielDEsposito
- Administrador
- Mensajes: 1212
- Registrado: 30 de Junio de 2014 - 20:49:17
- País: Argentina
Re: Dintel en aberturas...
Clavaderas de 15cm x 7,5cm? Son grandes!!!juano80 escribió:Tal cual daniel!!!! Recién abro para comentarte lo mismo que es lo que estuveanalizndo viendo los planos. Los cambios los voy a hacer de pino oregon 3x8 y la idea es cruzarle 3x6 para clavaderas.
Creeria que con eso estas bien sobrado!!
Siempre es conveniente consultar a un Profesional Matriculado (Ingeniero Civil, Arquitecto, Maestro Mayor de Obras) para no poner en riesgo la vida de personas.
-
DonLeopardo
- Mensajes: 42
- Registrado: 04 de Junio de 2015 - 13:16:08
- País: Argentina
Re: Dintel en aberturas...
buenas daniel, si soy mmo, ex estudiante de ingeniería y me hice en el steel frame empezando con un curso de dry wall en una escuela para adultos (para despuntar el vicio) y me empezó a gustar y cada vez que veo una obra de steel paro para ver y seguir interiorizandome de problemas resueltos en obra. Volviendo a este proyecto, vos me decís que puede ser stripping pero para mi el stripping funciona efectivamente a 1,30 mts, no tan arriba, saludos patagonicos.