Proyecto en Steel

Aqui podes contarnos de tu proyecto subiendo fotos y videos/ o podes preguntarnos paso a paso para que te ayudemos con tu obra!!
Avatar de Usuario
sanlucas
Mensajes: 16
Registrado: 19 de Abril de 2016 - 21:14:43
País: Argentina

Proyecto en Steel

Mensaje por sanlucas »

Hola gente!!!

Me acabo de registrar en el foro ya que de casualidad lo encontré navegando en internet. Me parece barbaro el servicio de orientacion y asesoramiento que brindan!!!!! :clapping:
Estoy armando un proyecto con un gran amigo miio que es arquitecto. Quiero construir en steel framing, y lo quiero hacer yo. He realizado trabajos en durlock pero nunca en este sistema, que por lo que estuve investigando es bastante similar.
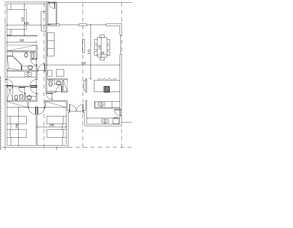
Lo que mas me preocupa es el tema del techo ya que el proyecto es de 150 mts(ya que es la sup minima que me permiten construir) y en la parte de lo que sería el living comedor la abertura maxima es de 7.50 mts. No se si es mucho o no...
Mi pregunta es: cuanto es la distancia que se puede armar una cabreada sin soporte central, no se si me explico.
Les adjunto un croquis de la casa como para que me den opiniones y consejos para modificar/arreglar en el mismo.

Desde ya muchas gracias a todos!!!

Sergio
Adjuntos
SL JPG.jpg
DonLeopardo
Mensajes: 42
Registrado: 04 de Junio de 2015 - 13:16:08
País: Argentina

Re: Proyecto en Steel

Mensaje por DonLeopardo »

Hola lucas, muy bueno el proyecto podrias enviar como tenes pensados los techo o algo que nos de mas idea del proyecto??, saludos patagonicos.
Avatar de Usuario
sanlucas
Mensajes: 16
Registrado: 19 de Abril de 2016 - 21:14:43
País: Argentina

Re: Proyecto en Steel

Mensaje por sanlucas »

Sanleopardo

El techo lo vamos a hacer escondido, si se puede a un agua mejor!
De chapa acanalada ya que como no se va a ver no importa mucho

Gracias

Sergio :good:
juano80
Mensajes: 37
Registrado: 10 de Marzo de 2016 - 15:07:09
País: Argentina

Re: Proyecto en Steel

Mensaje por juano80 »

Hola Sergio!!!

es en dos plantas la casa?? como pensas hacer la estructura?
en donde la vas a hacer?

saludos!!!!!!!
Avatar de Usuario
sanlucas
Mensajes: 16
Registrado: 19 de Abril de 2016 - 21:14:43
País: Argentina

Re: Proyecto en Steel

Mensaje por sanlucas »

Hola juano80

La casa es en una planta. La estructura toda steel. El interior tabiques durlock.
El lugar de construccion es el sur de gba, canning mas precisamente. En un barrio cerrado.

Como hacen para sacar el calculo de materiales?
Podrian tirar data de los lugares con mejor precio de la zona?

Gracias!

Sergio
juano80
Mensajes: 37
Registrado: 10 de Marzo de 2016 - 15:07:09
País: Argentina

Re: Proyecto en Steel

Mensaje por juano80 »

Sergio!!!
Te pregunte la zona porque a mi me pasa lo mismo pero en Bariloche, y me exijen 130mts en una planta como minimo. Los calculos seria bueno que te los haga un ingeniero, y el mismo te tendria que hacer el Panelizado con los perfiles que van.
Ya eleji perfileria Barbieri, me parecen buenos para trabajar, pero hay otras marcas buenas tambien.
Exitos!!!! Y cuando puedas subi mas planos de tu casa!!!!! Como estructura de las paredes exteriores, techo, etc.
Saludos!!!
GreenING
Mensajes: 13
Registrado: 01 de Noviembre de 2015 - 13:18:24
País: Argentina

Re: Proyecto en Steel

Mensaje por GreenING »

Hola Sergio, 7,50m sin apoyo se puede hacer pero con la pendiente se te va a ver el techo de todos lados. Si haces techo oculto tendría que ser cubierta plana, que tambien se puede hacer con steel framing.
Slds.-
juano80
Mensajes: 37
Registrado: 10 de Marzo de 2016 - 15:07:09
País: Argentina

Re: Proyecto en Steel

Mensaje por juano80 »

Yo tengo mi techo a una sola agua y tenfo la misma luz que la tuya, 7 x 8. Voy a colocar cabios Formados por 2 Perfil C de 180 soldados entres si, colocados cada 2,7mts en esa luz de 8mts, teniendo un largo total de punta a punta (7mts) de 9mts. Apoyan sobre columnas realiadas dentro del panelizado, algunas con 3 PGC 100 y otra con estructural de 100x100. La pared mas alta tiene 4,26mts y termina en otra pared de 2,78mts.
Que el ingeniero te haga los calculos!!!!!!!!
Exitos
Avatar de Usuario
sanlucas
Mensajes: 16
Registrado: 19 de Abril de 2016 - 21:14:43
País: Argentina

Re: Proyecto en Steel

Mensaje por sanlucas »

Hola muchachos:

Muchas gracias por sus comentarios. Hoy voy a ver a mi arquitecto y ya le voy a pedir el cálculo de paneles asi ya saco un número real de materiales a comprar. Asi ya comienzo con las presentaciones de los planos en el barrio etc etc

Les contaré y preguntaré a medida que vaya teniendo novedades

Saludos!!!

Sergio
Avatar de Usuario
DanielDEsposito
Administrador
Mensajes: 1212
Registrado: 30 de Junio de 2014 - 20:49:17
País: Argentina

Re: Proyecto en Steel

Mensaje por DanielDEsposito »

sanlucas escribió:Hola gente!!!
Lo que mas me preocupa es el tema del techo ya que el proyecto es de 150 mts(ya que es la sup minima que me permiten construir) y en la parte de lo que sería el living comedor la abertura maxima es de 7.50 mts. No se si es mucho o no...
Mi pregunta es: cuanto es la distancia que se puede armar una cabreada sin soporte central, no se si me explico.
Les adjunto un croquis de la casa como para que me den opiniones y consejos para modificar/arreglar en el mismo.

Desde ya muchas gracias a todos!!!

Sergio
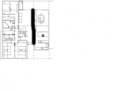
Hola Sergio, si va a ser techo escondido yo pondria una viga con perfileria de 200 o 250mm apoyada en esos mini-muros que veo.. Los cuales seran portantes y reforzados lo cual es muy facil de hacer..

Luego de eso que va a quedar una "luz" de poco mas de 3mts!! con lo cual podes incluso colocar cabios de 100mm espalda con espalda cada 2 o 3 montantes (cada 2 si estas modulando cada 48 y cada 3 si modulas cada 40cm)
Las clavaderas (perpendiculares) deben ir cada 80cm maximo y ser de 100mm.. ya que en esos 100mm ira escondida la canaleta.. espero sirva saludos

la linea gruesa en negro representa donde iria montada la viga aerea de 200 o 250mm
Adjuntos
viga soporta techo 03.jpg
Siempre es conveniente consultar a un Profesional Matriculado (Ingeniero Civil, Arquitecto, Maestro Mayor de Obras) para no poner en riesgo la vida de personas.
Responder