Ampliacion quincho /galeria abierto

Aqui podes contarnos de tu proyecto subiendo fotos y videos/ o podes preguntarnos paso a paso para que te ayudemos con tu obra!!
Matiasgomez
Mensajes: 2
Registrado: 31 de Mayo de 2017 - 22:42:38
País: Argentina

Ampliacion quincho /galeria abierto

Mensaje por Matiasgomez »

Buenas ante todos saludarlos soy nuevo en el foro me estoy interesando y investigando un poco es este sistema de costruccion no me dedico a la construccion pero he 8aprendido bastante haciendo mi casa pero siempre en sistema tradicional .
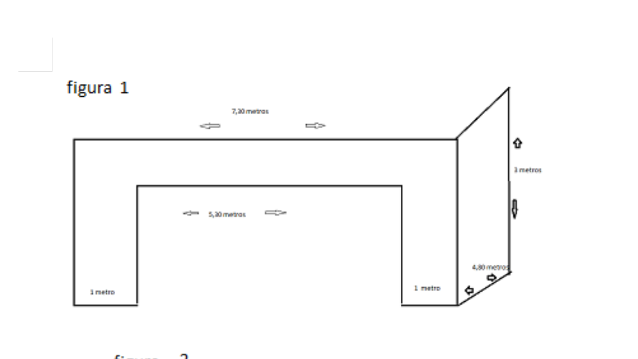
Ahora quisiera ampliar un poco la casa creando un nuevo ambiente una especie de quincho abierto . Y lei bastante del foro quizas me podrian asesorar un poco con mi proyecto con el tipo de perfileria que usar en paredes aunq mi mayor duda es en la perfileria para el techo la idea es hacerlo de chapa de zing con aislacion termica y adentro cielo razo de durlock un lateral apoyaria sobre la medianera la cual tengo q subir un poco la altura y la partr de atras apoyaria en la casa .. espero ser claro
Adjuntos
Screenshot_20170601-004153.png
Responder