hola estoy terminando los planos de una construccion simple de una planta con techo a un agua de chapa sinusoidal, las medidas del la platea son 6.7 x 6 y la construccion sera de 6.4 x 5.5. dejare unas pequeñas veriditas a los costados
me gustaria recibir fotos de proyectos para seguir aprendiendo, ya que he visitado obras y leido manuales pero me falta mucho en practica asi que se agradece las imagenes q me puedan mandar de armado de paneles interiores, ventanas y vanos de puertas (que veo por ejemplo que en los manuales usas el sistema de KING, pero en las construcciones que veo no lo usan y asumo que ese sistema se usa cuando se arman dos pisos, no se bien)
por otro lado me gustaria saber que poner debajo de los pgu que van a la platea, he visto una cinta con membrana en una obra, en una no le han puesto nada, querria mas informacion al respecto, para que no entre agua o evitar vibraciones, etc.
y por el techo estare consultando mas porque no se si me conviene hacer una cabios de madera de 2x6 o conviene hacer la estructura en pgu o pgc directamente, porque al no haber visto muchas obras, no se como se hace el tema de aislacion, como se pone la lana de vidrio, etc.
saludos y gracias de antemano
Preparando construccion
Re: Preparando construccion
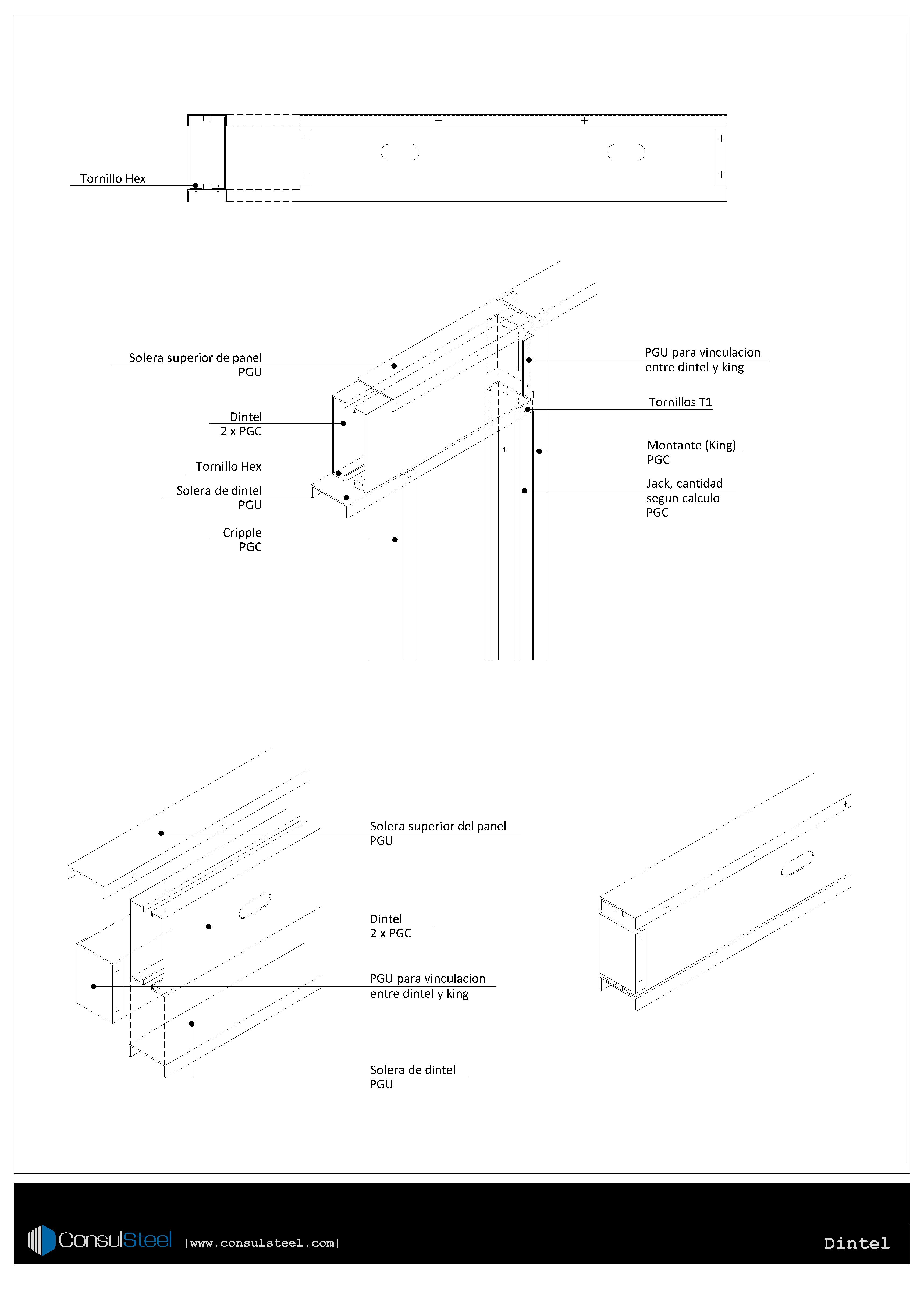
Hola como estas? king y jack siempre van en las aberturas cuando son paneles portantes, con respecto a lo que te referis que va debajo del pgu entre la platea se llama cinta o banda acustica y es recomendable colocarla por un tema de aislacion.PSSAC escribió:hola estoy terminando los planos de una construccion simple de una planta con techo a un agua de chapa sinusoidal, las medidas del la platea son 6.7 x 6 y la construccion sera de 6.4 x 5.5. dejare unas pequeñas veriditas a los costados
me gustaria recibir fotos de proyectos para seguir aprendiendo, ya que he visitado obras y leido manuales pero me falta mucho en practica asi que se agradece las imagenes q me puedan mandar de armado de paneles interiores, ventanas y vanos de puertas (que veo por ejemplo que en los manuales usas el sistema de KING, pero en las construcciones que veo no lo usan y asumo que ese sistema se usa cuando se arman dos pisos, no se bien)
por otro lado me gustaria saber que poner debajo de los pgu que van a la platea, he visto una cinta con membrana en una obra, en una no le han puesto nada, querria mas informacion al respecto, para que no entre agua o evitar vibraciones, etc.
y por el techo estare consultando mas porque no se si me conviene hacer una cabios de madera de 2x6 o conviene hacer la estructura en pgu o pgc directamente, porque al no haber visto muchas obras, no se como se hace el tema de aislacion, como se pone la lana de vidrio, etc.
saludos y gracias de antemano
con respecto al techo la lana de vidrio se coloca entre pgc tal cual en los paneles.